Universal Design
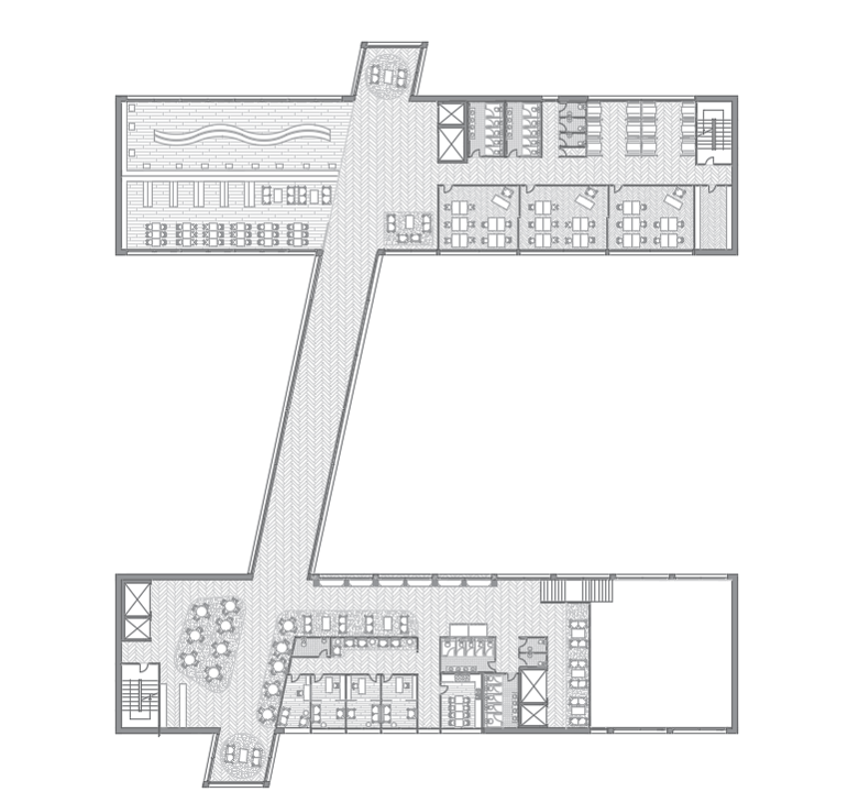
For this module we were briefed to design a building of our choice in Ireland, and choose a suitable use. I chose to do a community development centre, from scratch, located on a site for the redevelopment of the old flats on Dominick Street Upper/ Dorset Street. It is a two-storey building designed particularly as a space for children to come after school or anytime their home might not be a suitable environment for them to be in. However, with the various services and activities available in the centre, individuals of all ages and abilities are welcome. The objective is to help reduce crime rates and antisocial behavior in the area, by offering access to recreational activities such as sport, art, music etc, reducing the likelihood of kids getting involved in crime. The centre will support employment, offering cv workshops, job training programes and childcare facilities, as well as access to counselling and mental health services to whoever needs it.


Concept
As the location of the site is right on the Luas line, I drew a lot of my inspiration from the Luas. I started by looking at the Luas, and then the intersection of tram lines. I wanted to somehow incorporate that into the design of my building.






Ground Floor Plan


Reception
Day Care
Arts & Crafts Room
Staff Rom
Canteen
Gym/ Sports Hall
First Floor Plan


Library
Gallery
Classrooms/ Multifunctional Rooms
Study Pods
Void to Reception
Counselling rooms and waiting area
Coffee Stand
2D Cad Section


Reception Renders






Canteen Renders






Arts & Crafts Room Render




Hallway/ Seating Area Render




Library Render




Exterior Render




The 7 Principles of Universal Design and how my design incorporated them.
Equitable Use
The building is useful and marketable to people with different abilities, by including large elevators, different table heights, wide staircase, hallways and doorways, and various seating options. The building is suitable and comfortable to use for people of all ages, no matter their abilities.
Flexibility in Use
The building has multifunctional rooms and spaces, with partitioned walls and furniture with wheels, making it simple and easy to change the function of the room. With a variety of seating options and table heights, the centre accommodates individuals with a wide range of preferences and abilities.
Simple and Intuitive Use
The design of the building is easy to understand and follow, regardless of the users experience or knowledge. The building has clear paths of travel, with different floor or ceiling materials to distinguish between seating areas or walking areas. There are clear, lit exit signs and lighting strips to help guide the way to the exit.
Perceptible Information
The design communicates necessary information effectively to the user, regardless of ambient conditions or sensory abilities. There are illuminated exit signs , clear signage with braille to accommodate users with visual impairments. There is visual contrast, helping to define pathways and spatial functions.
Tolerance for Error
The design minimizes hazards and the adverse consequences of accidental or unintended actions. There are wide, open floorplans which reduce tripping hazards. The furniture is light or has wheels, making it easy to maneuver, reducing the risk of someone hurting themselves whilst moving.
Low Physical Effort
The design can be used efficiently and comfortably and with a minimum of fatigue. Hallways are wide and flat, which aids wheelchair and stroller movement. There are multiple elevators available. Furniture and partitioned walls have wheels making it easy to maneuver with little effort.
Size & Space for Approach and Use
Appropriate size and space is provided for approach, reach, manipulation and use regardless of user’s body size, posture or mobility. Hallways are above the minimum width requirements, there is generous spacing between tables and seating areas, disabled toilets are above the minimum size required, providing comfort for users.














Portfolio
Showcasing my interior design projects and skills.
© 2025. All rights reserved.